Casă Modulară Tiny House Malia 74 m2
Casa cu 2 module poate fi o variantă la casa de vacanță mult visată. În mai puțin de 6 luni te poți bucura de natură într-un loc ales de tine.
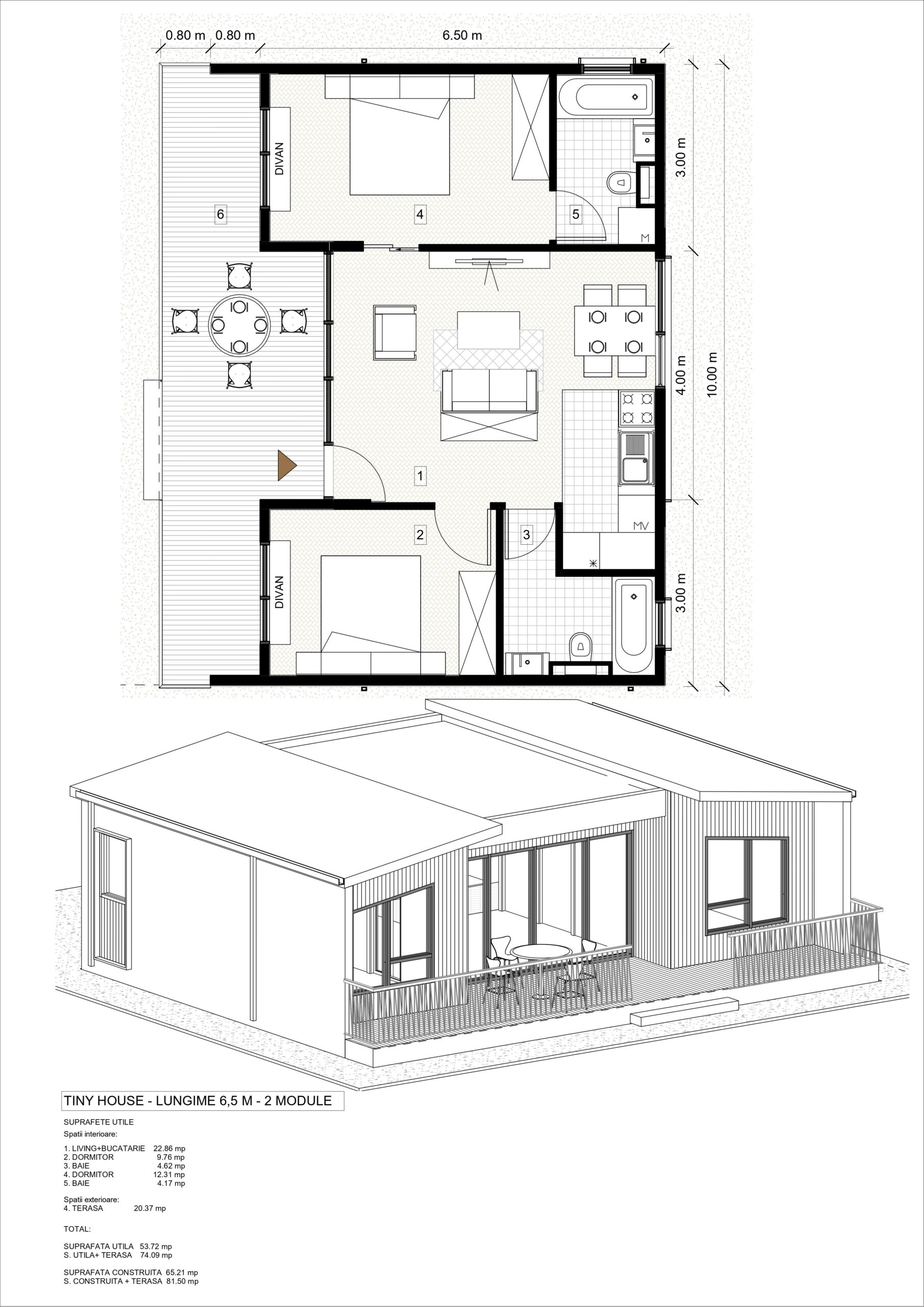
Casă modulară Malia
Suprafețe utile
Spații interioare:
- Living + Bucătărie: 22.86 mp
- Dormitor: 9.76 mp
- Baie: 4.62 mp
- Dormitor: 12.31 mp
- Baie: 4.17 mp
Spații exterioare:
- Terasă: 20.37 mp
Suprafețe totale
- Suprafață utilă: 53.72 mp
- Suprafață utilă + terasă: 74.09 mp
- Suprafață construită: 65.21 mp
- Suprafață cons. + Terasă: 81.50 mp
Preț
Cere o ofertă