Casă Modulară Tiny House Jocelynne 40 m2
Casa cu un modul îți oferă posibilitatea să te bucuri de natură sau sa ai parte de un birou amplasat in natura sau unde iți dorești.
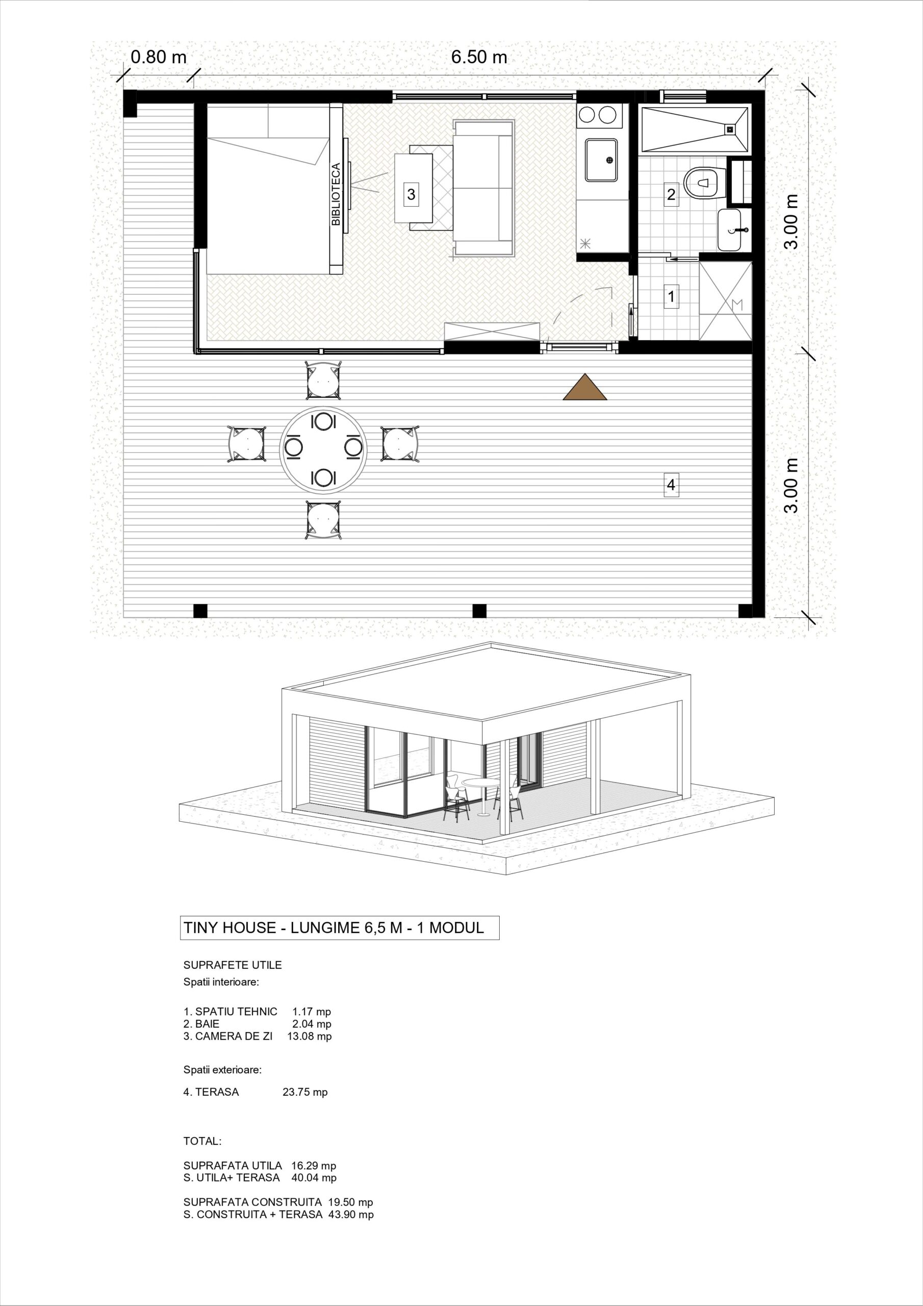
Casă modulară Jocelynne
Suprafețe utile
Spații interioare:
- Spațiu tehnic: 1.17 mp
- Baie: 2.04 mp
- Cameră de zi: 13.08 mp
Spații exterioare:
- Terasă: 23.75 mp
Suprafețe totale
- Suprafață utilă: 16.29 mp
- Suprafață utilă + terasă: 40.04 mp
- Suprafață construită: 19.50 mp
- Suprafață cons. + Terasă: 43.90 mp