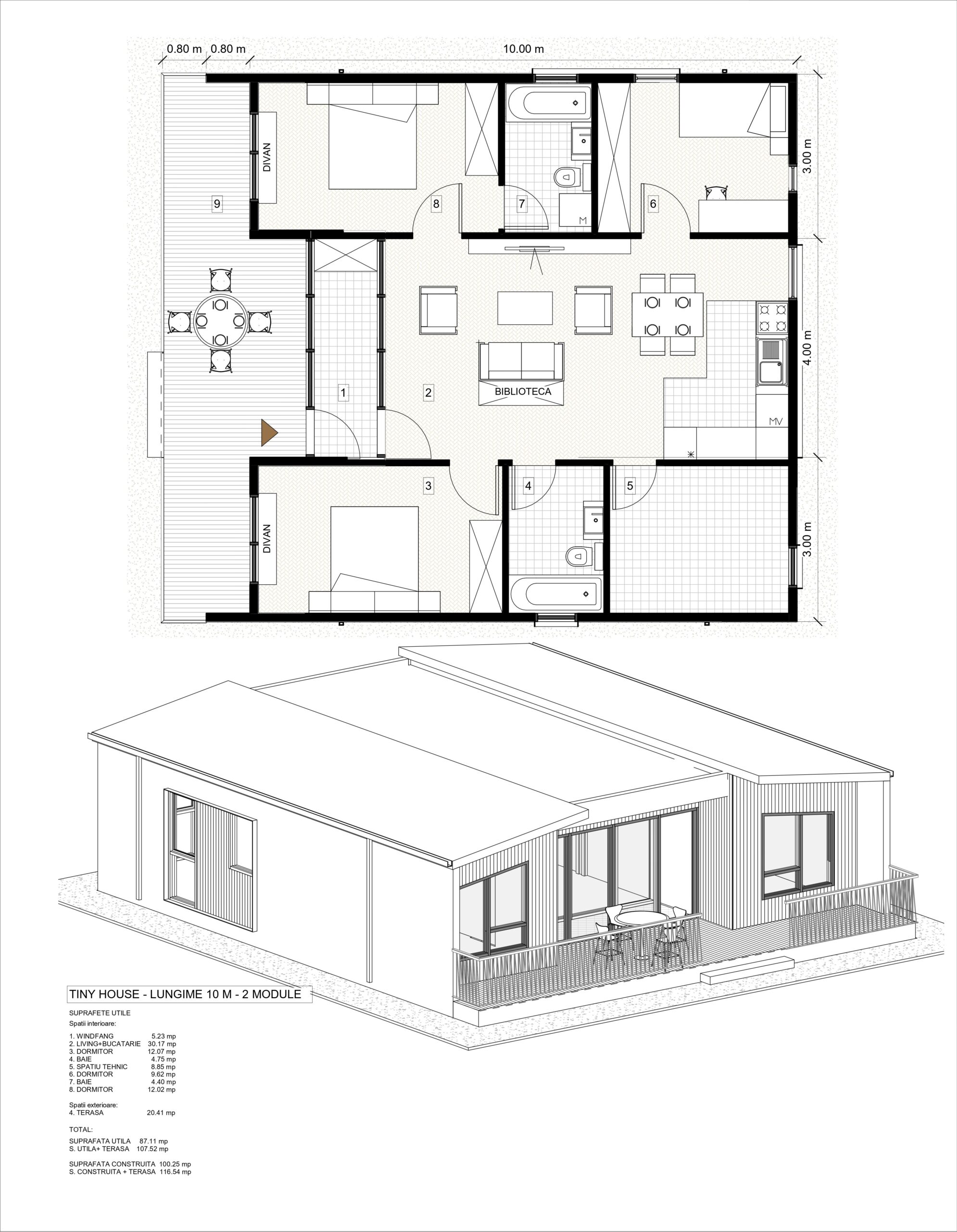
Casă Modulară Tiny House Delphine 107 m2
Dacă vrei să îți petreci timp de calitate împreună cu toți membrii familiei atunci casa Delphine cu 2 module de și un total 107 m2 poate fi potrivită pentru tine.
Casă modulară Jocelynne
Suprafețe utile
Spații interioare:
- Windfang: 5.23 mp
- Living + Bucătărie: 30.17 mp
- Dormitor: 12.07 mp
- Baie: 4.75 mp
- Spațiu tehnic: 8.85 mp
- Dormitor: 9.62 mp
- Baie: 4.40 mp
- Dormitor: 12.02 mp
Spații exterioare:
- Terasă: 20.37 mp
Suprafețe totale
- Suprafață utilă: 87.11 mp
- Suprafață utilă + terasă: 107.52 mp
- Suprafață construită: 100.25 mp
- Suprafață cons. + Terasă: 116.54 mp